如果锯齿切除的部分比鳍片厚度大时,即a≥2,
散热器面积越大,它的散热能力越强???
本期给大家带来的是关于针状鳍片散热器散热能力的研究内容,希望对大家有帮助。
本文部分观点摘选自《寻找热量的足迹》,感兴趣的可以去看原文。
散热器面积越大, 它的散热能力越强。我不知道有多少人是这么认为的。这是一个经验规则,导致实际项目当中可能会犯一些经验主义错误。
我们以针状鳍片散热器举例说明。

针状片散热器的设计理念是试图在一个给定的体积里生成尽可能多的换热面积。
在如上图所示的针状散热器中,看上去似乎生成了很多换热面积,但事实上真是如此吗?


其中,鳍片高度为10mm,厚度为2mm,横切的宽度为amm,基板为的正方形。
那么,
板翅型鳍片散热片面积为,S1=780mm²
针状鳍片散热片面积为,S2=3*(3*2*(10-2a)/3+6*2*10+6*10*(10-2a)/3)=1020-132a(mm²)
针状鳍片散热片面积为,S2≤1020-132*2(mm²)=756mm²
众所周知,换热公式,

初步看来,其他不变的情况下,确实是A变大,Q肯定是越来越大,但实际情况要复杂得多。
其散热能力,考量的并不是表面积,而是与流过的气流接触的表面积才对换热有帮助。
如果板翅型鳍片散热器安装正确的话,鳍片的表面积与气流方向一致,对流换热有帮助,如下图所示,

对于针状鳍片散热器,只有与气流同方向的表面积能够接触到流动空气;垂直气流方向的表面积接触到的只是静止的空气或漩涡气流,这部分表面积无法带走太多热量。
因此,针状鳍片散热器不仅没有增加散热面积,而且有一半的表面积朝向错误的气流方向。
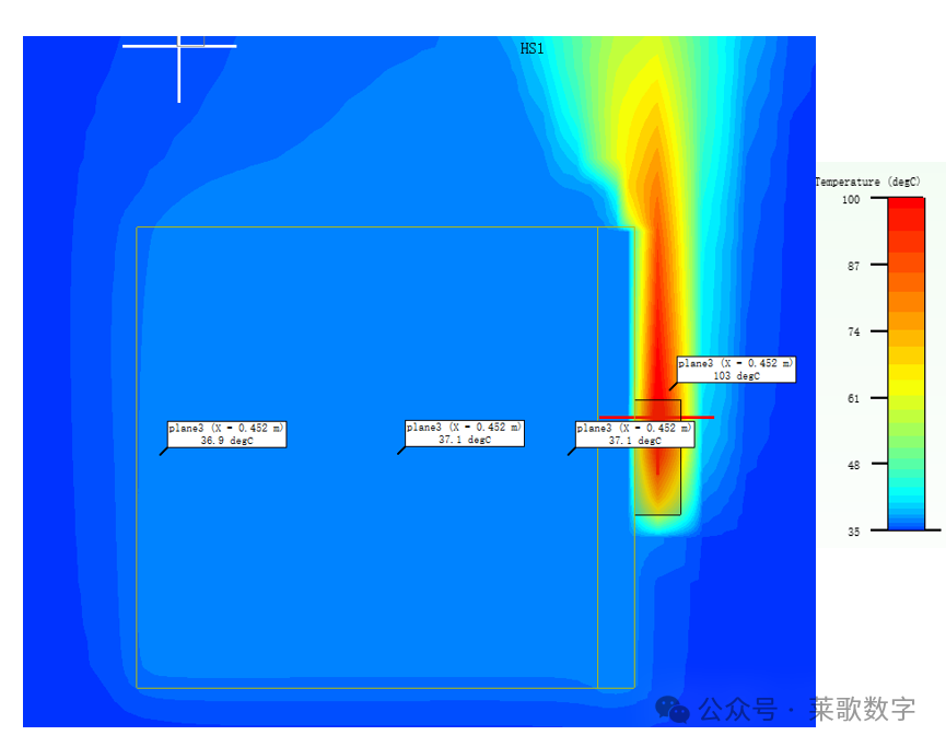
仿真验证
通过Flotherm仿真对比两种情况,
case1:板翅型鳍片散热器

case2:针状鳍片散热器

实验结果如下
温度场


流场

切除宽度小于鳍片厚度
可以看出基本与上述情况符合,使用针状鳍片散热器与板翅型鳍片散热器,同样尺寸、材料等情况下,热源温度还要高7℃。
另外,有提到“小拇指规则”,通过软件command center也可以做自动优化,感兴趣的可以去验证一下。
即,当功耗和鳞片长度一定时,可以用教科书上的方程式计算散热器最优的鳞片间距。
对于典型的散热器(如 1in x 1in 或 2in x 2in)和 10W 以内的功耗,自然对流散热的最佳鳍片间距大约为 1/4in( 6.4mm)。
还有一个更好的方法,如果散热器储片之间无法容纳你的小拇指,那么不要在自然对流散热中使用这个散热器,称之为“小拇指规则”。



